
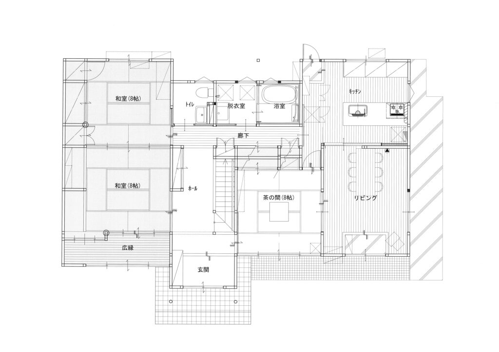
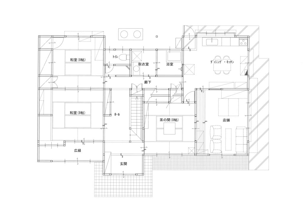
一人暮らしのお父様との同居を考えて息子様ご夫婦よりリフォームのご依頼をいただき、1階のもともと店舗だったお部屋をゆっくりとくつろげるリビングルームにしました。
リビングの南側にはお父様のご友人が遊びに来た際に少し腰かけて談笑できるような土間をつくり、南面と東面には大きな窓を設けるなどお施主様のこだわりがぎゅっと詰まった空間になりました。

リビングのペレットストーブはお施主様のご希望でご支給いただきました。
お打合せを重ねて位置や内装の仕様を何度も検討していただきとても暖かみのある空間に仕上がりました。

お施主様より思い出の詰まった茶の間は今までのまま使用したいとのご希望があり、リビングと茶の間をつなぐ組子入りのガラス戸はきれいに洗って再利用しました。

料理器具や食器などが雑多に見えやすい対面キッチンも豊富な収納ですっきりと綺麗なキッチンを保てるようになりました。

キッチンとリビングの間はつながりを持たせるために2枚引きの建具を入れ、通常時は開け放ち来客時は空間を仕切れるようにしました。

キッチンのペンダントライトには、お施主様お手製のライトを取り付けたいとのご要望をいただき、ライトの個数を調整できるようにダクトレールを取り付けました。
シンプルな空間に灯るライトが癒しの時間をつくりだす要素のひとつになっています。
今回のリフォームで、実家がまるで新築のように生まれ変わりました。家族みんなが驚くほどの変化で、毎日がより快適で心地よく過ごせるようになりました。
リフォームを決めてから実際に着手するまで、私たちには約2年の時間がかかりました。迷いや不安もありましたが、御社の丁寧な対応と確かな技術のおかげで、無事にリフォームを終えることができました。心より感謝申し上げます。
今回の依頼にあたっては、3社を比較検討しましたが、最終的に御社を選んだ決め手は「デザイン力」でした。私たちの希望を的確に汲み取り、暮らしに寄り添った提案をしていただけたことが大きな安心につながりました。
良かった点
少し残念だった点